επωληθη

Πωλείται - Βίλα 135 μ² στις Κυκλάδες

Ελλάδα Νησιά Αιγαίου Κυκλάδες Πάρος
Κατόπιν ζήτησης
Property 41659 photo 1
Property 41659 photo 2
Property 41659 photo 3
Property 41659 photo 4
Property 41659 photo 5
Property 41659 photo 6
Property 41659 photo 7
Property 41659 photo 8

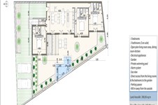
Χαρακτηριστικά

  • Έτος κατασκευής: 2020
  • Αριθμός δωματίων: 4
  • Κατασκευή: Υπό κατασκευή
  • Bathrooms: 3
  • Bedrooms: 3
  • WCs: 3
  • Απόσταση από τη θάλασσα: 900 μ
  • Απόσταση απο αεροδρόμιο: 10 χλμ

Υπηρεσίες

  • Πάρκινγκ
  • Πισίνα

Περιγραφή

Πωλείται υπό κατασκευή 1-όροφη βίλλα έκτασης 135 τ.μ στις Κυκλάδες. Η βίλλα αποτελείται από 3 υπνοδωμάτια, σαλονοκουζίνα, 3 μπάνια. Η βίλα έχει διάταξη εμπρός. Προσφέρει θέα στη θάλασσα. Διαθέτει έπιπλα, κλιματιστικό, πισίνα για ιδιωτική χρήση, θέση στάθμευσης, κήπο, συναγερμό.

Η βίλλα βρίσκεται στην περιοχή Αγκαιρία της Πάρου.

Χαρακτηριστικά :

Η βίλα ανήκει σε  συγκρότημα βιλών.
Η βίλα θα κατασκευαστεί χρησιμοποιώντας τις τελευταίες τεχνολογίες και υλικά υψηλής ποιότητας.
Το ακίνητο έχει σχεδιαστεί για να έχει άμεση πρόσβαση από το σαλόνι και τα υπνοδωμάτια στον κήπο για να απολαμβάνεται η καταπληκτική θέα της θάλασσας και του ηλιοβασιλέματος.
Εμπεριέχει Ιδιωτική πισίνα και χώρους στάθμευσης.
Η βίλα θα διαθέτει σύστημα συναγερμού.
Περιλαμβάνονται όλες οι ηλεκτρικές συσκευές.



Οι παραπάνω πληροφορίες βασίζονται αποκλειστικά σε πληροφορίες που έχει προσκομίσει ο ιδιοκτήτης του ακινήτου στην εταιρεία μας, οι οποίες υπόκεινται σε τυχόν τυπογραφικά λάθη ή αλλαγή τιμής από τον ίδιο.
ΒΑΣΕΙ ΤΟΥ ΝΟΜΟΥ 4072/2012, ΓΙΑ ΤΗΝ ΥΠΟΔΕΙΞΗ ΤΟΥ ΑΚΙΝΗΤΟΥ ΕΙΝΑΙ ΑΠΑΡΑΙΤΗΤΗ Η ΕΠΙΔΕΙΞΗ ΤΗΣ ΑΣΤΥΝΟΜΙΚΗΣ ΤΑΥΤΟΤΗΤΑΣ ΚΑΙ ΤΟΥ ΑΦΜ ΚΑΙ Η ΚΑΤΑΓΡΑΦΗ ΑΥΤΩΝ ΣΤΗΝ ΕΝΤΟΛΗ ΥΠΟΔΕΙΞΗΣ ΑΚΙΝΗΤΟΥ.
Η ένδειξη στο χάρτη δεν υποδεικνύει την ακριβή θέση του ακινήτου αλλά γενικά την περιοχή στην οποία αυτό βρίσκεται. Για οποιαδήποτε άλλη πληροφορία επικοινωνήστε μαζί μας.

Τοποθεσία

Παρόμοια ακίνητα

Πωλείται
4 400 000 € 9565 €/m²
  • Κωδικός 26021
  • Εμβαδόν 460 m²
  • Αριθμός δωματίων 6
Πωλείται
2 500 000 € 2500 €/m²
  • Κωδικός 38443
  • Εμβαδόν 1000 m²
  • Αριθμός δωματίων 13
Προτεινόμενo Πωλείται
640 000 € 5765 €/m²
  • Κωδικός 60193
  • Εμβαδόν 111 m²
  • Αριθμός δωματίων 4
Πωλείται
1 900 000 € 5428 €/m²
  • Κωδικός 64851
  • Εμβαδόν 350 m²
  • Αριθμός δωματίων 8
Πωλείται
1 900 000 € 5671 €/m²
  • Κωδικός 64906
  • Εμβαδόν 335 m²
  • Αριθμός δωματίων 6

Εγγραφή στο ενημερωτικό δελτίο